Grâce au versement de deux subventions de la part du département de Meurthe et Moselle et de la région Grand Est couvrant 20% du montant total des travaux, les travaux de la maternité de Kankalabé, financés par l’AKGN, peuvent débuter.


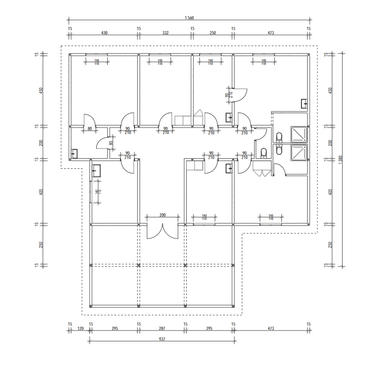
Le projet consiste à transformer la maternité actuelle (photo de gauche) pour en faire un endroit fonctionnel et moderne pour permettre aux femmes de Kankalabé d’accoucher sur place dans de meilleures conditions. Les plans de la future maternité ont été élaborés grâce à de nombreux échanges entre professionnels de santé français et guinéens.
Nous remercions nos partenaires publics pour leur soutien ainsi que l’ensemble des personnes qui ont déjà participé au financement de ces travaux. Il est toujours possible de participer à la réalisation de ce centre indispensable grâce à des dons, vous trouverez toutes les informations sur notre site.
Mise à jour de décembre 2023 : visitez la maternité reconstruite !

2 commentaires sur « Début des travaux de la maternité de Kankalabé »